Site and House Plans

Site Plans
The Clearwater Commons is a Low-Impact Development. Our plans include the building of the community as well as restoring the stream and wetlands on the property to a more natural and native state. Click on the image to see the overall site plan.
Low Impact Development (LID) projects result in fewer disturbances to the environment and the site, while performing functional alternatives to traditional stormwater management systems (curb and gutters, concrete roads, storm sewer piping, detention ponds). LID techniques provide cost effective alternatives to typical housing development infrastructure.
LID Methods:
- On site stormwater management
- Minimal site disturbance
- Rain gardens
- Permeable paving
- Small building footprints
- Pin pile foundations
- Rainwater harvesting
- Native plantings
Site Goals:
- Restore the creek and wetland
- Create wildlife habitat
- Pedestrian friendly layout
- Centralized parking area
- Conserve energy
- Solar electric (community)
- Build sustainably
- Maximize indoor air quality

Pedestrian Friendly. The site is designed to be pedestrian friendly and the entire residential portion of the Commons is pedestrian access only. Parking is restricted to the perimeter lot, but there is limited access for emergency vehicles and for loading or unloading of large items or other special circumstances. The centralized parking area minimizes the amount of pavement required on the project, reducing the costs and improving appearances. Our central path is constructed with a lovely terracotta grass pave sturdy enough for firetrucks.
Rainwater. Rainwater is sent into infiltration trenches that process the water before it moves down into the south wetland and creek.
Rain Gardens. Rain gardens are shallow landscaped depressions that are designed to mimic natural site conditions. The soil structure and vegetation allow stormwater to be stored and slowly released through infiltration thus minimizing the impact on North Creek. Rain gardens will be used along 194th St. SE as a technique for managing stormwater runoff.
Permeable Pavement. Permeable pavement is used in several locations on site and is designed to allow water to flow through it into a layer of base rock below which holds the water while it slowly infiltrates into the site. This is another feature that allows rainwater to be absorbed on site instead of having it run off into a stormwater system and ultimately North Creek.

Pin Pile Foundations. These foundations replace the traditional poured concrete foundations. Whereas standard foundations create small dams limiting subsurface ground waters natural flow, pin foundations allow shallow groundwater to move unhindered under the house thus mimicking traditional flow paths.
The house foundations are small concrete pods that support the structure of the building without digging down into the soil. They are roughly egg shaped and have steel pins that go down into the soil like roots to hold it in place. Here is a link to the manufacturer’s site: Pin Foundations

Native Plantings. North Creek and the wetlands areas are major features of the site. In these areas we are removing the invasive Reed Canary grass and other non-native invasive weeds and restoring the site with native trees and plants. The site will evolve over the years from a pasture to a wetland woods and meadow. We worked with Snohomish County on a North Creek restoration project - the engineering and planting phases of this project are complete. We are maintaining the hundreds of trees that were planted near the creek.
Solar Electric. We plan to have community solar electric panels that will generate electricity for common buildings. Excess summer electricity will be fed back into the utility grid and we will receive credits which we can draw off of during the cloudy winter months. Similar systems will be prepped for at each home and the homeowners will determine when and if they want to produce their own solar electric power.

Community Plaza. Near the planned Common House and overlooking the North Creek ravine, a plaza is another place to gather. We have a lot of ideas for it including an outdoor barbecue and an area for tables, an outdoor clay oven, hot tub and sauna. The design will be created by the community.
Community Garden. A community garden is located near the south end of the site where members can participate in gardening activities.
Playfields. There are two grass playfields on site.
Houses and Shared Buildings
Townhouses and Single Family Homes


To keep the architectural and construction costs down, we elected to design two basic floor plans and use those for the basis of all the houses on the site. Townhouses are an offset joining of the two designs that will maximize sunlight going into each unit.
The houses have many features that make them Deep Green. They have also been designed to strike a balance between the social aspects of living in a close community and the need for privacy. Plans are included in a site purchase, however you are welcome to bring in your own green designs subject to HOA approval.
Layout


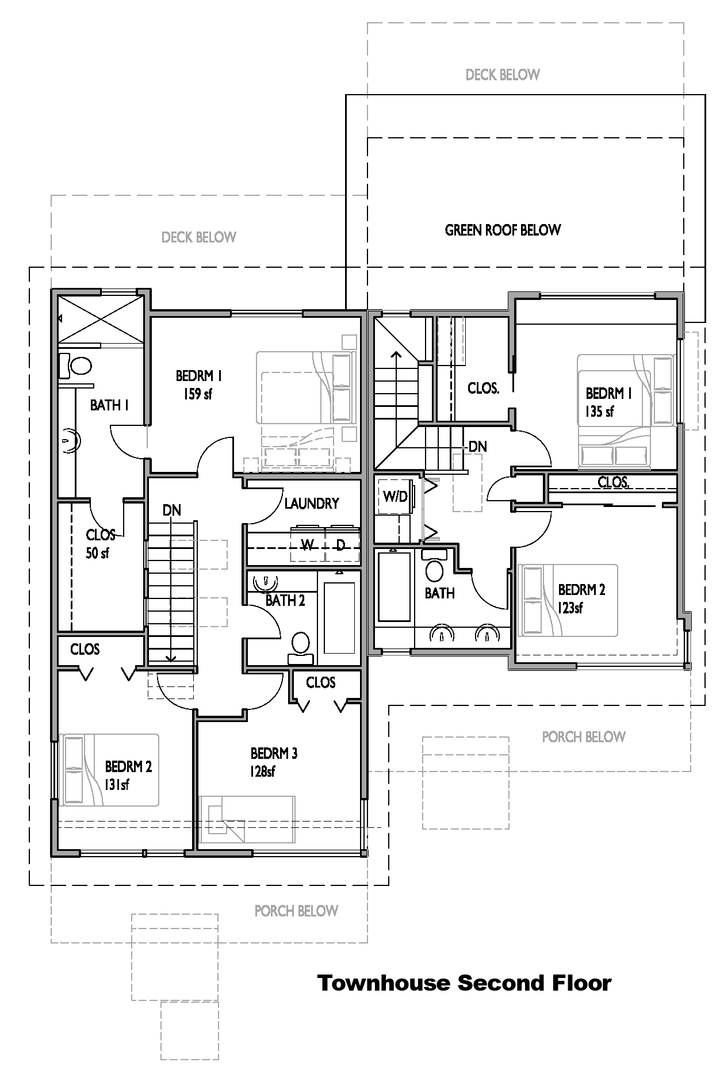
Like European cohousing communities, our kitchens face the common area with the more private living rooms located at the back of the homes - most with views to the wetlands. There will be both three bedroom and two bedroom unit plans available. Coming in the front door, you find an entry vestibule with a small lavatory and a place to kick off your shoes and coats.  Two or three bedrooms are located on the second floor. The master bedroom will have a walk-in closet and, in the case of the three bedroom unit, a private bath. Laundry facilities are also on the second floor near the bedrooms. Click on the picture to see the latest house plans.
Advanced Framing. Advanced Framing is a technique used to reduce the amount of materials used in framing yet still maintaining structural integrity. Changes to the stud and joist spacing and placement as well as careful reduction in header sizes results in a substantial reduction in the amount of lumber while maximizing space for insulation. The wider spacing of the studs also reduces the thermal breaks in the walls and the heat loss through the walls.
insulation. We are using a combination of fiberglass insulation with a layer of rigid foam on all exterior walls, ceilings and floors.  The rigid foam reduces the thermal breaks to the exterior minimizing heat loss and reducing the energy used to heat the space. Improved insulation values, minimization of thermal breaks, and increased insulation quantity due to advance framing will greatly reduce the heating and cooling requirements for the homes.
Indoor Air Quality. Through the use of low toxic materials and a heat recovery air exchange system. The houses will always have fresh air in spite of the excellent insulation and sealed houses.
Pin Pile foundations. These foundations replace the traditional poured concrete foundations. Whereas standard foundations create small dams limiting subsurface ground waters natural flow, pin foundations allow shallow ground water to move unhindered under the house thus mimicking traditional ground water flow paths.
Shared Buildings

Common House. The Common House will be the central indoor gathering place at the Commons with room for sharing meals, activities and parties.
Parking Lot Storage Shed. This building provides storage space for tools for car maintenance, gardening and other “garage” kinds of things. Lighting inside and out will be solar electric.
Shop. Members are combining tools to create a shared workspace for personal and Commons projects. This building will also be designed for future solar electric production.
Art Studio. This space attached to the shop building provides a space to work on art projects like pottery, crafts, painting. A place that you can get messy in!
